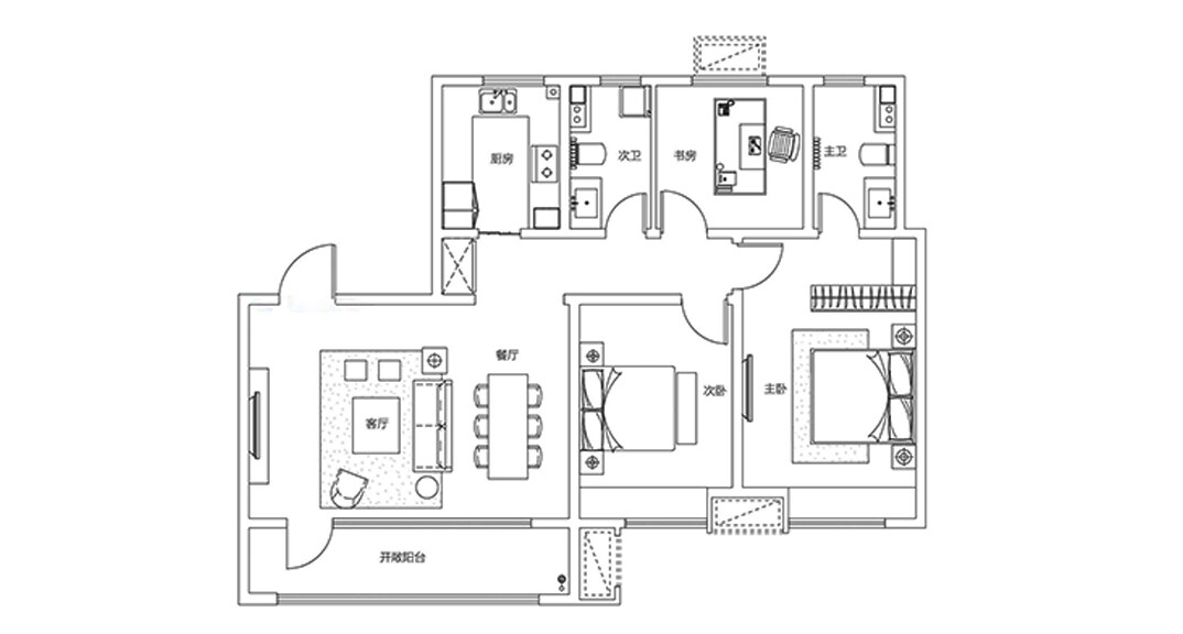
青特星城142㎡三室兩廳戶型平面布局圖

青特星城142㎡三室兩廳客廳新中式風(fēng)格裝修案例效果圖

青特星城142㎡三室兩廳客廳新中式風(fēng)格裝修案例效果圖

青特星城142㎡三室兩廳客餐廳新中式風(fēng)格裝修案例效果圖

青特星城142㎡三室兩廳主臥新中式風(fēng)格裝修案例效果圖

青特星城142㎡三室兩廳次臥新中式風(fēng)格裝修案例效果圖

青特星城142㎡三室兩廳次臥新中式風(fēng)格裝修案例效果圖