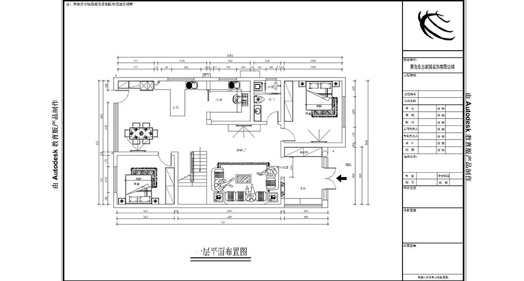
安納溪220㎡獨(dú)棟別墅一層戶型平面布局圖
安納溪220㎡獨(dú)棟別墅二層戶型平面布局圖
安納溪220㎡獨(dú)棟別墅客廳古典中式風(fēng)格裝修案例效果圖
安納溪220㎡獨(dú)棟別墅樓梯古典中式風(fēng)格裝修案例效果圖
安納溪220㎡獨(dú)棟別墅樓梯走廊古典中式風(fēng)格裝修案例效果圖
安納溪220㎡獨(dú)棟別墅臥室古典中式風(fēng)格裝修案例效果圖